Property Description
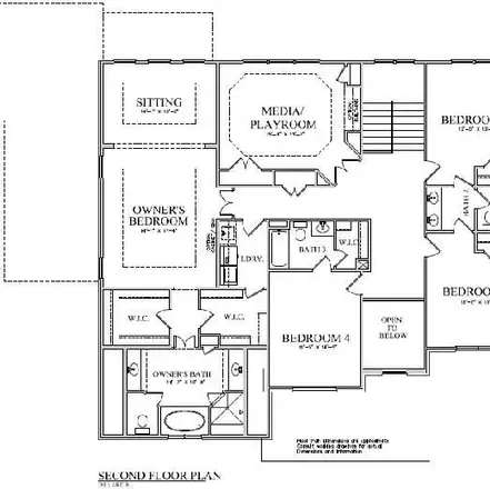
Beautiful architectural details. Double pane Pella windows throughout. 3 car side-entry garage (2,1). This floor plan is perfect for Entertaining. There's a guest suite on the main floor. Study and Formal dining room. Fireplace in the family room. Optional Vaulted KEEPING ROOM off the Kitchen with a wood burning Fireplace. Kids will love the Playroom/Media room upstairs.
Highvale
Bercher Homes is proud to introduce a new community just moments from vibrant downtown Marietta. Tucked into one of Cobb County’s most sought-after areas, this thoughtfully planned neighborhood offers 22 beautiful lots in the highly regarded Marietta High School district. With timeless design, well-proportioned homesites, and a prime location near shops, restaurants, and city events, this community combines everyday convenience with the enduring quality and craftsmanship that define every Bercher home.
Schools & Amenities
Area Schools
Marietta City SD
Actual schools may vary. Contact the builder for more information.
Community Amenities
Approximately 1/3 acre Homesites
Cul de sac street
Local Area Amenities
Marietta Square Restaurants and Shops
City Club Marietta Golf Course
Floor Plans














